Optimizing steel connection production, Rijssen, Netherlands

Voortman Steel Group
With the installation of the fully automatic assembly and welding machine, Voortman redesigned all standard connections with IDEA StatiCa Connection to maximize production efficiency.

Voortman steel group is one of the leading fabricators in the production of machines for the preparation, processing, and production of steel structures, details, and connections.

Implementation of IDEA StatiCa Connection to their workflows decreases the consumption and handling of the material and the welding costs in comparison to the previously used approach. This went hand in hand with simplifying and speeding up the production process.

Thijs Oerbekke, Registered Structural Engineer / Welding- & Quality Engineer, Voortman Steel Construction

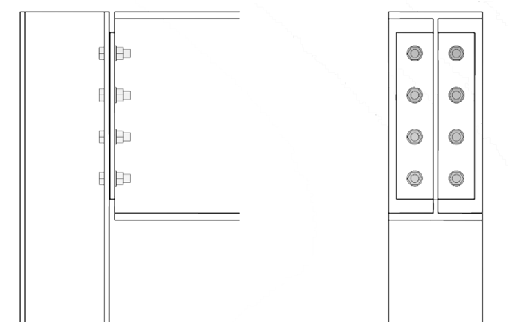
Example of standard connection optimization with IDEA StatiCa Connection

Standard connection designed by the component method:Standard connection designed by IDEA StatiCa CBFEM method:
End plate:
thickness 25 mm
weld flanges 13 mm
weld webs 8 mm
End plate:
thickness 20 mm
weld flanges 8 mm
weld webs 5 mm
4 x stiffener:
thickness 25 mm
weld flanges 13 mm
weld webs 8 mm
2 x stiffener:
thickness 10 mm
weld flanges 5 mm
weld webs 5 mm
Bolts:
2 x 6 x M36
Bolts:
2 x 4 x M36
inline image in article
inline image in article

Savings:

  • End plates 25%
  • Stiffeners 60% (not only the material but also fewer parts to be produced, handled and assembled)
  • Welds 38% throat thickness, welding volume up to 70% (the welding volume determines the welding cost)
  • Bolts 33%

Weld and plate optimization, Mill tolerances, and accessibility are taken into account.

inline image in article
inline image in article
inline image in article
inline image in article
Voortman Steel Group

Voortman Steel Group

Netherlands
The Voortman Steel Group consists of innovative and internationally operating companies. IR A LA PÁGINA