Independent calculations for UK motorway cantilever signage structure

The M1 Motorway | United Kingdom | Valbek EU
A complex project to independently verify a cantilever ring signage structure along England’s M1 motorway required high-level structural assessments. With tight deadlines and intricate structural requirements, IDEA StatiCa’s connection design capabilities became instrumental in delivering reliable, compliant results.

About the Project

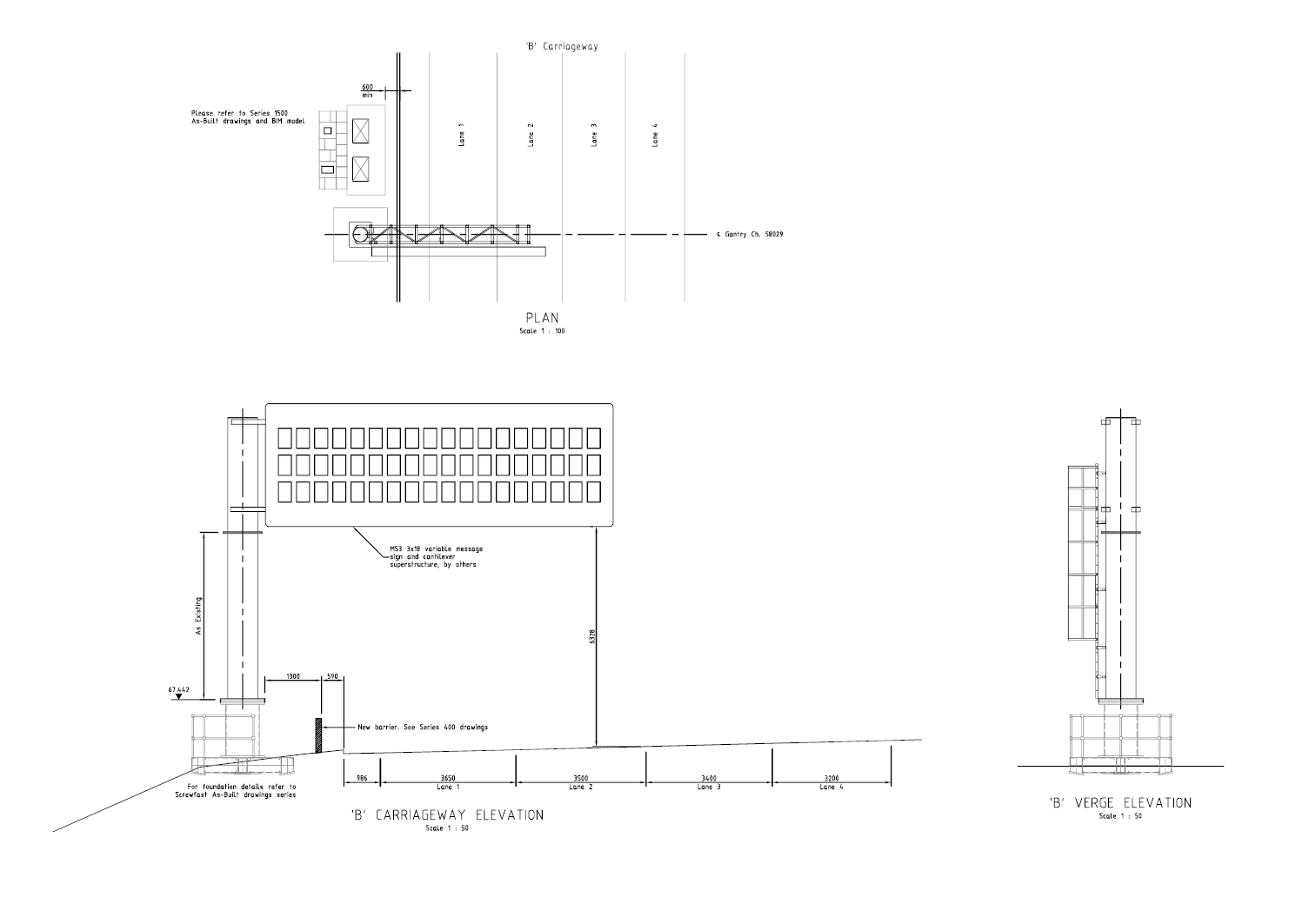
The M1 motorway signage upgrade demanded a cantilever ring structure supported by a steel grillage substructure, secured with screw piles on a slope embankment. Positioned over one of England’s busiest motorways, this independent verification project required meticulous calculation and modeling to ensure the structure met stringent Eurocode standards, particularly for fatigue under high traffic load conditions.

Richter Associates, a Polish-based engineering firm specializing in temporary works and ground engineering, undertook the project. The team, led by Principal Engineer Maciej Adamczyk, combined expertise in temporary works and connection design to deliver an efficient and accurate solution. This project highlighted Richter Associates’ ability to integrate innovative tools like IDEA StatiCa into their workflows to achieve both technical excellence and client satisfaction.

inline image in article

Engineering Challenges

This project presented a range of technical and logistical challenges. The cantilever ring structure, located on a slope embankment, needed to endure repetitive traffic-induced loads and accidental collision forces while meeting the strict fatigue and robustness requirements outlined in CD 365 and Eurocode standards. Fatigue checks were required for all structural members and plates, particularly welds, bolts, and stiffeners, where high-utilization stress peaks were most likely. IDEA StatiCa was critical in quickly and accurately determining stress ranges in all parts, a capability unmatched by other software.

inline image in article
Fatigue checks for all structural members and plates of the gantry were crucial. IDEA StatiCa allowed us to very quickly and accurately determine stress ranges in all parts, including the welds, which no other software could achieve in the required timeframes
Maciej Adamczyk
Maciej Adamczyk
Principal Engineer – Valbek EU
Czech Republic

Collision forces, which were not part of the original design specification, introduced additional complexity. These forces significantly impacted the utilization of steel plates and bolts, requiring sophisticated analysis to ensure compliance without overdesign. The structure also relied on 12 screw piles to stabilize and distribute loads across variable soil conditions, further complicating the verification process.

inline image in article

Initially, the team planned to verify each connection individually. However, given the number of interdependent elements, this approach proved inefficient. Instead, the team adopted a global modeling approach using IDEA StatiCa, enabling them to analyze all connections simultaneously and streamline the process. The fast-paced UK temporary works market added further pressure, necessitating a solution that could deliver results within tight deadlines without compromising accuracy or compliance.

Using IDEA StatiCa for this project allowed us to save significant time, quickly addressing all stress and fatigue requirements. In the British market, where fast turnaround is crucial, this was a game-changer.
Maciej Adamczyk
Maciej Adamczyk
Principal Engineer – Valbek EU
Czech Republic

Solutions and Results

The workflow began with Tekla Structural Designer for base-level modeling, which provided insights into load distributions and pile reactions under standard conditions. From the outset, the team planned to use IDEA StatiCa Connection for detailed connection checks, but as the project evolved, the scope expanded to cover all structural elements in a single model. This shift to a global model, facilitated by IDEA StatiCa’s Component-Based Finite Element Method (CBFEM), allowed Richter Associates to analyze complex load combinations, stress peaks, and fatigue effects comprehensively.

inline image in article

IDEA StatiCa’s flexibility in shaping connections using stiffening members and plates proved invaluable. These tools enabled the team to define intricate details and assess their behavior under specific loading conditions, ensuring compliance with CD 365 and Eurocode fatigue standards. One of the software’s standout features was its ability to consolidate multiple connection checks into a single model, dramatically improving workflow efficiency and accuracy. By adopting this approach, the team not only saved significant time but also ensured consistent results across all elements of the structure.

inline image in article
The ability to analyze whole sections of the structure with multiple connections in one model made the design process faster and more accurate.
Maciej Adamczyk
Maciej Adamczyk
Principal Engineer – Valbek EU
Czech Republic

The software also addressed challenges related to robustness requirements. The gantry was verified for increased impact forces without requiring redesign or strengthening, avoiding unnecessary costs and delays. IDEA StatiCa’s automated reporting further enhanced the process by providing professional, high-quality outputs that exceeded client expectations, simplifying communication and enhancing stakeholder confidence.

inline image in article
This project showed how efficient IDEA StatiCa is when we need precise checks under complex loads. Its usability for independent verification work is unmatched.
Maciej Adamczyk
Maciej Adamczyk
Principal Engineer – Valbek EU
Czech Republic

This project underscored IDEA StatiCa’s unique value as more than just a connection design tool. Its ability to analyze entire sections of a structure with multiple connections in a single model made it an indispensable solution for complex projects. The combination of flexibility, speed, and accuracy, along with its automated reporting capabilities, demonstrated how IDEA StatiCa can transform workflows and meet the most demanding project requirements.

About Richter Associates Poland

Founded in 1990, Richter Associates specializes in temporary works design, although their wide-ranging expertise means they offer highly developed engineering services for all construction projects. With a wealth of experience working on buildings, bridges, geotechnical works, marine work, refurbishments, railways, infrastructure, and demolition, there is no construction challenge they cannot accept. They bring together the engineers and administrators, and partners and practices that make up their team into a unified, deeply collaborative organization. Richter Associates (Poland) was established in 2021 and is regarded as one of the best within Richter Group, delivering projects in UK, Germany, Norway and Poland. They are known for taking on and delivering the most complex projects, and their Engineering competence and company culture is a driving force behind this success

Prueba IDEA StatiCa gratis

Comienza tu prueba hoy mismo y disfruta de 14 días de acceso completo y servicios gratuitos.

OTHER CASE STUDIES

Salón de los Sabores

Valbek EU

Valbek EU

Czech Republic
IR A LA PÁGINA