Photovoltaic canopy steel structure, California

Napa County, California | United States | KPFF Consulting Engineers
By leveraging IDEA StatiCa, KPFF Consulting Engineers successfully designed a photovoltaic canopy structure for the Napa Valley Transit Authority that not only met their sustainability goals but also adhered to rigorous engineering standards, ensuring safety and durability for years to come. This project stands as a testament to the effectiveness of integrating advanced engineering software with innovative design solutions in achieving sustainable infrastructure development.

About the Project

The Napa Valley Transit Authority embarked on an ambitious project to install a photovoltaic (PV) canopy structure at their site located at 101 Sheehy Court, Napa, CA. This project aimed to provide a sustainable energy solution while enhancing the functionality of the transit facility. The PV canopy is classified as a long-span array supported by wide flange (WF) sections for beams and columns. The PV modules are mounted on cold-formed steel purlins, which span between the beams, forming the primary structural framework.

In addition to its sustainable benefits, the project also aimed to showcase the technological advancements in structural engineering and renewable energy integration. By installing the PV canopy, the Napa Valley Transit Authority not only contributes to reducing carbon emissions but also sets a precedent for other transit authorities to adopt similar eco-friendly initiatives.

The design for the canopy was provided by KPFF Consulting Engineers.

Engineering Challenges

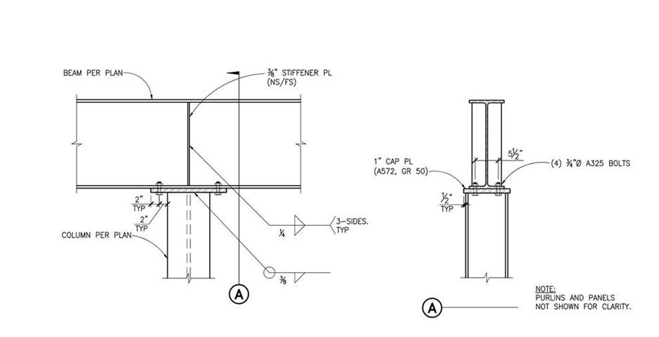
The project presented several engineering challenges, including the design and analysis of the long-span canopy structure. The lateral force-resisting system had to be meticulously planned, with the east-west direction using a steel ordinary moment frame and the north-south direction utilizing steel ordinary cantilevered columns, as per ASCE 7 Chapter 12. The columns were embedded into concrete pile foundations, adding another layer of complexity.

inline image in article

The design process involved addressing the potential for significant wind and seismic forces, given the location's seismic activity. Ensuring that the PV canopy could withstand these forces without compromising structural integrity was a key consideration. Moreover, the unique behavior of the connections, especially the two-way prying action on the pass-over plates, required precise analysis and validation, which could not be achieved through traditional hand calculations.

inline image in article

Another significant challenge was the coordination between different engineering disciplines. The integration of electrical components with the structural elements required careful planning and execution to ensure that the PV modules could function efficiently without causing undue stress on the supporting structure.

Solutions and Results

IDEA StatiCa played a crucial role in addressing the engineering challenges of this project. The software enabled the design of typical details associated with PV solar canopies and captured the unique behaviors of the connections. The CBFEM analysis capabilities of IDEA StatiCa allowed the team to capture the two-way prying action and its effects on the pass-over plates accurately. This level of detail and precision was not possible with manual calculations, making IDEA StatiCa an indispensable tool for this project.

The finite element analysis provided by IDEA StatiCa precisely captured the two-way prying action and its effects on the pass-over plate, which we could not calculate by hand.
Benjamin Hicks
Benjamin Hicks
Associate | Project Manager – KPFF Consulting Engineers
United States

The iterative design process facilitated by IDEA StatiCa ensured that both the geometry and construction feasibility were thoroughly confirmed. By allowing for multiple design iterations, the engineering team could optimize the design for performance, constructability, and cost-efficiency. The software also produced an in-depth calculation package, which was essential for meeting the structural calculation submission requirements. This comprehensive package included detailed analysis results and design documentation, which were critical for obtaining the necessary approvals from regulatory bodies.

inline image in article
inline image in article

Furthermore, the use of IDEA StatiCa facilitated seamless integration with other design software used in the project, such as BIM (Building Information Modeling) tools. This interoperability ensured that all design aspects were well-coordinated, reducing the likelihood of errors and rework during construction.

The result was a robust and reliable PV canopy structure that met all design and safety standards. The successful implementation of the PV canopy has significantly enhanced the sustainability of the Napa Valley Transit Authority's operations. The project has not only provided a renewable energy source but also improved the overall aesthetics and functionality of the transit facility.

The iterative design capabilities of IDEA StatiCa ensured that our designs were both geometrically sound and feasible for construction, saving us significant time and effort.
Ayah Alomari
Ayah Alomari
Design Engineer – KPFF Consulting Engineers
United States

Additionally, the project has set a benchmark for future developments in the region. The successful integration of advanced structural engineering solutions with renewable energy systems has demonstrated the feasibility and benefits of such projects. The Napa Valley Transit Authority is now seen as a leader in sustainable infrastructure development, inspiring other organizations to pursue similar initiatives.

Try IDEA StatiCa for free

Start your trial today and enjoy 14 days of full access and services free of charge.
KPFF Consulting Engineers

KPFF Consulting Engineers

United States
KPFF Consulting Engineers is a multi-office, multi-discipline engineering firm. Details